Электрический духовой шкаф Kuppersberg KMW 694 с СВЧ

  • Артикул:
    172205
76010
Срок поставки: 2-4 дня
Описание для Электрический духовой шкаф Kuppersberg KMW 694 с СВЧ

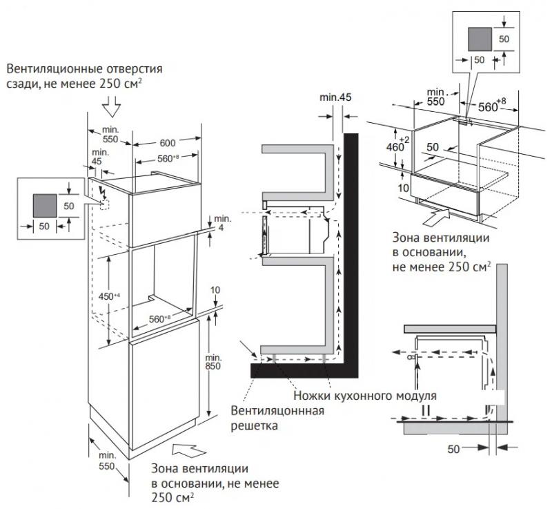
Электрический духовой шкаф KUPPERSBERG KMW 694 оснащен сенсорным управлением и функциями отсрочки старта, таймера и часов. Мощность подключения составляет 3000 Вт, а максимальная температура нагрева достигает высоких значений. В комплект входит гидролизная система очистки, электрический гриль мощностью 2200 Вт и функция СВЧ мощностью 900 Вт. Режимы работы включают СВЧ, гриль, конвекцию и размораживание. Дополнительные элементы представлены глубоким противнем, решеткой для гриля и стеклянным противнем. Открывание дверцы осуществляется вниз, она имеет 4 стекла и светодиодное освещение. Особенности конструкции включают вентилятор охлаждения и полностью стеклянную внутреннюю поверхность дверцы. Цвет черный. Класс энергоэффективности не указан. Размеры составляют 59.5х56.8х45.4 см, вес 38.8 кг.

Создание Интернет-магазина Mobilewood.com - PHPShop. Все права защищены © 2003-2026.